Gå till innehåll
Österåkers kommuns logotype

Festlig invigning av Skånstaparken

Bild på en bågformad installation, Tidsportalen, med runskrift ingraverad i Skånstaparken. Runskriften  lyder: ”Vi ska leka, leker, lekte, nu i Forum Vendelorum. Konstnären Guangjuan Zhang är med på fotot.

Tidsportalen. Runskriften lyder: ”Vi ska leka, leker, lekte, nu i Forum Vendelorum. Konstnären Guangjuan Zhang deltar vid invigningen.

Nu är stadsdelsparken Skånstaparken snart klar. Parken innehåller en aktivitetspark, en motionsslinga, en hundrastgård, promenadstråk och i mitten den så kallade Kantarellparken med planteringar, mötesplatser och ett nytt konstverk med forntidstema.

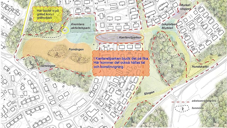
Skånstaparken ligger mellan Murkelvägen, Sjökarbyvägen och väg 276, nära Kantarellens förskola, seniorboendet Attendo Kantarellvägen och Österåkers konsthall. Den som önskar ta bil till invigningen kan med fördel parkera på Kantarellvägen. Se kartan nedan. Buss 623 har en hållplats i närheten.

Öppen park från klockan 13

Invigningen 7 november startar med möjligheten att pröva de olika aktiviteterna i Kremlans aktivitetspark med bland annat konstgräsplan, rutschkana och studsmatta. Klockan 13.30 serveras korv i det nya grillhuset i aktivitetsparken. För den som föredrar fika serveras kaffe och te i Kantarellparken från klockan 13.30. Här kan du som har barnasinnet kvar delta i en skattjakt: Sök järnåldersskatterna som är inpräglade i trampstenarna runt om i Kantarellparken och vinn ett pris.

Invigningstal från scenen i Kantarellparken från klockan 14

Den nya parken invigs med tal av Kommunalråd Mathias Lindow (L).

Konstverket Forum Vendelorum invigs av Kultur- och Fritidsnämndens ordförande Arne Ekstrand (Kd) som också samtalar med konstnärerna Guangjuan Zhang och Jan Stenberg.

Järnåldershistoria och ljus som tema

I parken finns ett fornminnesområde kallat Fornängen, med lämningar från järnåldern. Det är de här forntida lämningarna som inspirerat konstnärerna Guangjuan Zhang och Jan Stenberg till ett konstverk med anknytning till platsens historia. Deras förhoppning är att konstverket Forum Vendelorum ska fungera som en mötesplats, dels för dagens Österåkersbor men också som ett historiskt möte mellan järnålder och nutid. Titeln är inspirerad av den romerska mötesplatsen Forum Romanum som var en plats för samtal, handel och kultur i centrala Rom. Vendeltiden kallas en period av järnåldern i Sverige.

Konstverket innehåller fyra delar:

Mitt i parken passerar du genom Tidsportalen – utformad som en runsten som lyser och ändrar färg när du passerar och som talar både till nuet och det förflutna. Runskriften lyder: ”Vi ska leka, leker, lekte, nu i Forum Vendelorum.” Som en uppmuntran till barn från olika tider att ”prata” med varandra genom sin lek.

Skeppet som breder ut sig – med två stora drakhuvuden i cortenstål, ett i fören och ett i aktern. Tillsammans ramar de in parken som om ett gigantiskt skepp dolde sig under hela Kantarellparken.

Längs gångarna går du på runda stenar. På några av stenarna gömmer delar av Skatten som är bilder av järnföremål som nycklar, spjutspetsar, yxor och mynt och som väntar på att bli hittade.

Djurskulpturer baserade på historiska avbildningar av djursmycken och en leksak möter dig intill parkingången vid förskolan.

Varmt välkomna!

För mer information:
Klart för Skånstaparken – studs, rutsch, häng och kläng för alla åldrar! - Österåkers kommun Länk till annan webbplats.

Översikt med Skånsta informationsplan där bland annat Kremlans aktivitetspark, Fornängen och Kantarellparken finns utmärkta.

Skånsta informationsplan

Mer information

Datum:

Tid:

13:00 - 15:00

Ort:

Åkersberga

Plats:

Skånstaparken

Pris:

kostnadsfritt

Tillgänglighet:

Rullstolsvänlig gångväg
Senast uppdaterad: